CASA PAU-BRASIL
2015 - São Paulo - SP - 480m²
Equipe: Guilherme Leme e Guto Vicentainer
Construção: Sequência
Estrutura de Madeira: Timbau (Alan Dias)
Paisagismo: Oficina 2mais
Decoração (mobiliário solto): Dani Mattos e Cris Cavalheiro
Fotos: Ricardo Bassetti
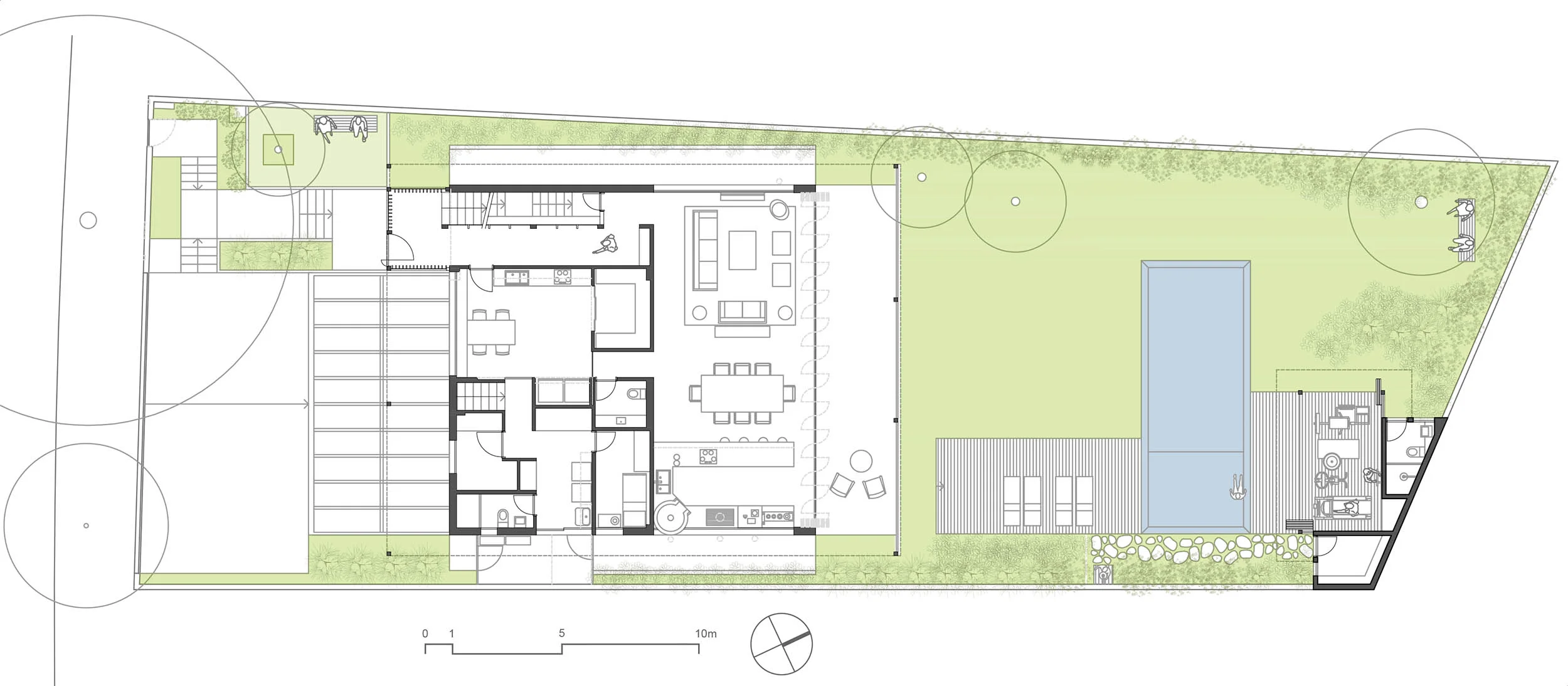
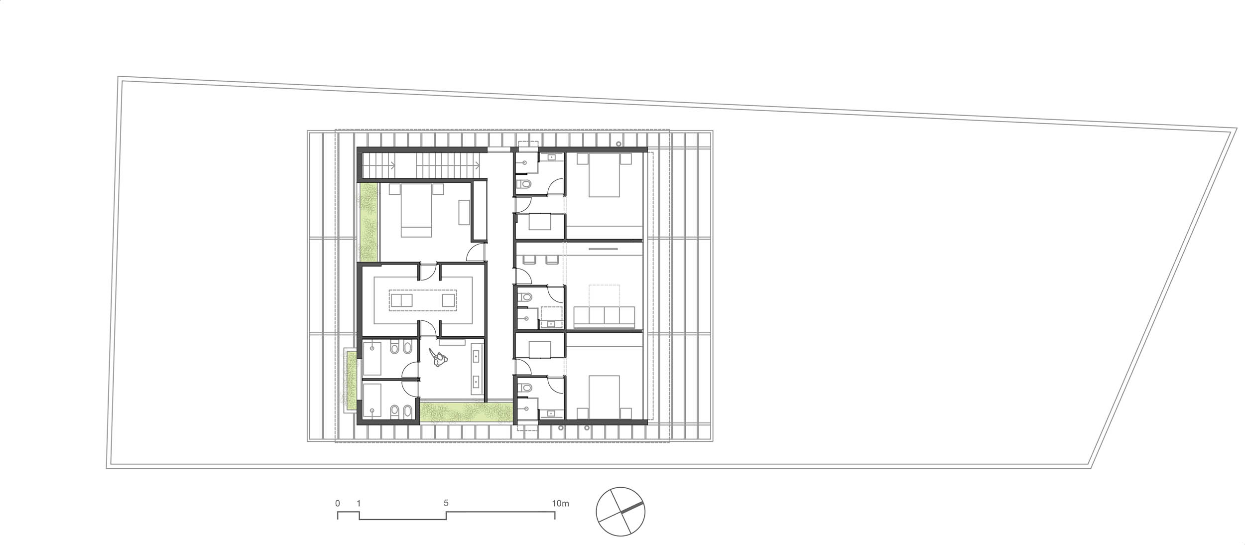
Situada em uma rua tranquila de um bairro exclusivamente residencial, a casa tem como único vizinho de frente um pequeno parque e, logo após este, o parque Villa Lobos. O pedido dos clientes priorizava o uso de lazer da casa aliada à utilização de materiais naturais. Uma casa dentro de São Paulo, mas com aspecto e clima de casa de veraneio. A implantação e distribuição da construção foi pensada de maneira a liberar o máximo de espaço livre no fundo do terreno. O percurso que conecta o hall de entrada à sala é feito através de um corredor que tem no seu ponto final a presença deliberada de uma chicane. No automobilismo esportivo, esse desvio artificial em um trecho da pista busca diminuir a velocidade do carro. Aqui a intenção é aumentar o efeito surpresa do visitante prestes a ver a sala e área de lazer. Ambas têm forte conexão visual e o caixilho abre-se totalmente liberando o vão de doze metros e transformando a sala em uma grande varanda. Uma estrutura de madeira laminada colada - ideal para vencer grandes vãos – abraça todo o perímetro da casa e cumpre as funções de hall de entrada, cobertura da garagem, pergolado e varanda. Esquadrias de madeira, cimento queimado, pedras brutas no exterior e interior e telhas planas de concreto envelopam uma estrutura de concreto armado, cobertura estruturada em steel frame e paredes de drywall com aspiração central. Uma adega, pedido do cliente depois do início da construção, foi abrigada em uma nova escada criada exatamente abaixo da escada original que conecta o térreo ao pavimento superior.
